Утепление
Не менее важным вопросом, чем гидроизоляция, в обустройстве отмостки является утепление. Благодаря утеплителю подвальное и цокольное помещение способно удерживать тепло, а также продлить эксплуатационный срок конструкции.
Утеплить отмостку позволяют несколько материалов:
- Пенополистирол. Отличается высокой прочностью и долговечностью, обладает гидрофобными свойствами. Простота в укладке обеспечивается благодаря его легкой массе. Произвести укладку можно всего в один слой материалом толщиной 10 см. Герметичности стыков материала можно добиться, заклеив их специальной пленкой, обладающей водоотталкивающими свойствами.
- Пенополиуретан. Экологически чистый материал, способный выдерживать морозы до -60°С и при этом не менять свои теплоизоляционные характеристики.
- Пенопласт. Вспененная структура этого легкого материала обеспечивает хорошие тепло- и звукоизоляционные свойства. Имеет низкую гигроскопичность и хорошие гидроизолирующие свойства. Устойчив к температурным перепадам и грибкам.
Утеплять не имеет смысла свайный и плитный фундамент без подвала.
Правильно сделать отмостку помогут советы мастеров:
- Гидроизоляцию фундамента необходимо делать сразу после его возведения.
- Отмостку по всему периметру дома нужно делать с уклоном минимум 3%. При этом необходимо стараться сделать его везде одинаковым. Строительный уровень станет в этом помощником.
- При приготовлении раствора бетона нужно не допускать попадания в него глины.
- Для утепления нужно выбирать прочные материалы, устойчивые к деформациям, чтобы под тяжестью отмостки они не изменяли форму и не растрескивались.
- Отмостка — конструкция, требующая ухода и периодического ремонта. Проводить его можно с использованием разных герметиков и мастик. Ими обрабатывают поврежденную поверхность, чтобы предупредить дальнейшее разрушение конструкции. При наличии глубоких трещин и сколов выполняют их расшивку, то есть расширение, после чего заливают бетоном. Отремонтированная стяжка накрывается пленкой и раз в сутки поливается водой, чтобы не допустить ее быстрого высыхания.
- Верхний слой отмостки является и декоративным, и защитным. Можно сделать покрытие из бетона, декоративной плитки или просто засыпать слоем цветного щебня. Засыпав верхний слой грунтом, можно устроить вокруг дома газон или посадить цветы.
- В качестве наполнителя бетонного основания рекомендуется использовать натуральный щебень, а не лом, поскольку при температурных перепадах он имеет свойство сужаться и расширяться.
- Растворы лучше выбирать те, которые изготавливаются на основе цементов с гидроизоляционными добавками.
- Важную роль в обеспечении отвода воды от фундамента дома играет устройство водостоков с крыши. Отмостка должна выходить за линию свеса крыши минимум на 20 см.
Как произвести гидроизоляцию отмостки
В зависимости от наличия подвала, выполняется одноуровневая и двухуровневая отмостка:
- Если в доме не предусмотрен подвал, то гидроизоляционный пласт укладывается на цокольном уровне, то есть выше земли на 200 мм. Так как основание в обязательном порядке изготавливается под уклоном 2-5 градусов, то защитный слой укладывается по специальным выступам. Благодаря этому, каждый последующий пласт будет выступать на определенную дистанцию.
- Если в строении есть подвал, то необходимо выполнить двухуровневую гидроизоляцию. Первый пласт размещается на уровне пола подвального помещения, а второй – на уровне цоколя, выше отмостки.

Чтобы изготовить основу, выполните следующие шаги:
- Снимите верхний слой земли, предварительно рассчитав ширину отмостки (обычно она составляет от 60 до 120 см).
- Уложите на дно траншеи слой глины высотой 10 см.
- Уложите гидроизоляционный материал, загнув его край на стену дома.
- Насыпьте песок высотой 10 см и утрамбуйте его.
- Уложите геотекстиль и присыпьте его тонким слоем песка (порядка 5 см).
- Насыпьте щебень, гальку или гравий толщиной 15 см.
- Уложите еще один слой геотекстиля и снова присыпьте его песком (если отмостка будет мягкой, то этот этап можно пропустить).
- Залейте основание цементом и уложите на него брусчатку. Если вы готовите мягкое основание, то можно сразу выложить тротуарную плитку, простукивая ее резиновым молотком.
Также можно выполнить горизонтальную гидроизоляцию с помощью:
- Цементной стяжки из ПЦ и уплотнителей толщиной 20-25 мм.
- Рубероида или толя, который укладывается двумя слоями и приклеивается мастикой.
- Асфальтовой стяжки толщиной 25-30 мм, которая кладется по уровню основания здания.

При работе стоит обратить внимание на некоторые особенности гидроизоляции
Основание для отмостки
Разбираясь, как сделать отмостку из тротуарной плитки, необходимо предусмотреть хорошее основание под будущую конструкцию. Его укладывают в несколько слоев, соблюдая технологию монтажа.
В разрезе ложе выглядит как слоенный пирог, что обусловлено его конструкцией. Для достижения экономии на материалах рекомендуется уменьшить толщину слоя.
Создание гидрозамка
При обустройстве отмостки следует выдержать небольшой уклон, по которому будет стекать лишняя жидкость. Его можно сделать во время высыпания глины или при укладке последнего слоя. После тщательного уплотнения дна, его засыпают 5-сантиметровым слоем глины. Иногда ее заменяют бетонной смесью. В таком случае толщину увеличивают до 15 см. Подобный слой хорошо отводит воду.
Для снижения боковой нагрузки на фундамент, рекомендуется оставлять зазор между основанием и отмосткой. Потом его засыпают песком или выкладывают рубероидом. Еще допускается применение пенопласта, который тоже компенсирует нагрузку и обеспечивает хорошую изоляцию.
Гидрозамок создается на основе ПВХ-пленки, геотекстиля и рубероида. При укладке полотна его нельзя натягивать. В противном случае появится риск разрыва пленки при замерзании почвы.
Обустраивая ливневую систему, на край пленки нужно поместить трубу и укрыть ее слоем щебня. Подобная мера необходима для защиты конструкции от забивания всевозможным мусором. Еще следует предусмотреть наличие ливнеприемника и трубы-ливневки. Технология пользуется спросом за счет особой простоты и минимальных затрат.
Засыпка песка
Полив продолжается до тех пор, пока не образуются небольшие лужицы
Важно дождаться, пока они просохнут, и приступить к трамбовке. Подобное основание обеспечит хорошую защиту отмостки от проникновения влаги и повреждения щебенкой
Установка бордюра
Обустраивая отмостку вокруг дома своими руками, важно уделить внимание монтажу бордюра. Его фиксируют по натянутому шнуру с помощью колышков и выравнивают строительным уровнем. Наружная сторона покрывается цементом, что является важной нормой для защиты плитки от расползания
В качестве альтернативы для классического бетонного бордюра можно использовать вариант из пластика
Наружная сторона покрывается цементом, что является важной нормой для защиты плитки от расползания. В качестве альтернативы для классического бетонного бордюра можно использовать вариант из пластика
Щебень
После размещения щебени допускается изъятие деревянных колышков, удерживающих бордюр. Потом следует провести трамбовку гравия и засыпать его песком.
Если помещение имеет цокольный этаж или подвал, отмостка подвергается дополнительному утеплению. Для этого следует выложить песчаную прослойку толщиной 50 мм и трамбовать ее. Только после выполнения перечисленных действий можно укладывать финишный пласт.
Укладка плитки
Чтобы понять, как правильно класть брусчатку, следует изучить пошаговую инструкцию и технологию укладки плитки для отмостки. Специалисты рекомендуют начинать работу со стороны фундамента, фиксируя плитку от себя, чтобы предотвратить разрушение слоя подушки. Каждая конструкция должна помещаться в выбранном месте и подбиваться резиновым молотком.

Чтобы выровнять поверхность задействуется строительный уровень, а любые удары по брусчатке осуществляются только с помощью дощечки. В таком случае вам удастся избежать деформации плитки.
Предлагаем ознакомиться: Кладка керамической плитки на печь
Между каждой плиткой выдерживается дистанция в 2 мм. Подобный зазор образуется за счет наличия специального замка, который присутствует на разных типах плиточной продукции
Если бордюр отсутствует, важно позаботиться об окантовочной плитке
Некоторые особенности гидроизоляции отмостки
Устройство гидроизоляции отмостки является важным критерием в обеспечении защиты фундамента здания и прилегающего участка. Особенности гидроизоляции:
Гидроизоляционные мероприятия и глубина отмостки делаются, принимая во внимание климатические условия, количество годовых осадков, уровень грунтовых вод, геологические характеристики района, в котором расположено здание, наличие водопроводных и канализационных сетей.
Гидроизоляция отмостки бывает первичной и вторичной. В первом случае бетонная стяжка изначально укладывается с учетом водоотталкивающих свойств и принятых гидроизоляционных мер
Во втором случае мероприятия по гидроизоляции являются добавочными и для этого применяется гидроизол.
Для получения качественной отмостки каждый ее слой и фундамент здания обрабатываются битумной мастикой.
На дно траншеи под отмостку укладывается гидроизоляция. Для этой цели лучше всего подойдет полипропиленовая или ПВХ-пленка. Полиэтиленовая пленка и рубероид тоже являются хорошим вариантом, хотя и уступают по характеристикам. Полотна материала укладываются внахлест и закрепляются на стенах фундамента.
Для эффективного отвода воды по периметру отмостки делается желоб.
Материалы, обладающие высокой пористостью, обрабатываются специальным составом, обладающим водоотталкивающими свойствами.
Дренажная мембрана является альтернативой бетонной отмостке. Она укладывается на грунт и засыпается слоем щебня и песка. Это позволяет сделать покрытие отмостки из любых материалов.
Материалы для отмостки
Гидроизоляция отмостки состоит из подстилающего слоя высотой в 20 см и покрытия из насыпного материала, который противостоит проникновению воды внутрь конструкции. Иногда между этими слоями дополнительно укладывается утепляющий материал.
Важно! Если вы используете сырье с пористой структурой, то каждый пласт необходимо обрабатывать водоотталкивающими препаратами. Сегодня для гидроизоляции отмостки используются следующие материалы:
Сегодня для гидроизоляции отмостки используются следующие материалы:
- Горячий гудрон или битумные мастики. Эти составы используют при обмазке фундамента.
- Рубероид, гидростеклоизол, геотекстиль.
- ПВХ-пленки.
- ПВП-мембраны (профилированные).
- Геотекстиль, рубемаст.

Если вы планируете изготовить твердую плиту, то лучше всего использовать гидроцемент или асфальтобетон. Также существуют специализированные составы, обладающие гидроизоляционными свойствами, например, «Xypex», «Masterseal» и прочие полимерные препараты. Они проникают в бетон и надежно защищают его от пагубного воздействия влаги.
Для гидроизоляции отмостки мягкого типа используют рулонные материалы, однако рубероид и полиэтилен не могут полностью защитить фундамент от влаги. Поэтому лучше отдать предпочтение поливинилхлоридным пленкам.
Помимо этого рулонные материалы обладают следующими недостатками:
- Поверхность цокольного этажа необходимо выровнять, очистить и тщательно просушить.
- Материалы этого типа обладают очень низкой прочностью и недолговечностью.
- Процесс укладки таких материалов требует много сил и времени.
- Гидроизоляционный слой необходимо защищать от механических повреждений.

Полезно! Если вы используете рулонные материалы, то рекомендуется произвести дополнительную вертикальную гидроизоляцию. Для этого материал необходимо завернуть на стену дома, высотой на 150-200 мм.
Что входит и за чей счет производится капитальный ремонт
Сумма взносов рассчитывается по усредненным показателям доходов и составляет около 9 рублей за квадратный метр, сумма зависит от категории дома. Жильцы муниципальных квартир лишены права голоса в ТСЖ (товарищество собственников жилья) и не имеют права вносить никаких предложений по организации и проведению капитального ремонта.
- производить ремонт и утепление фасадов и цоколей;
- произвести остекление балконов и лоджий;
- сменить окна и балконные блоки для большей изоляции от шума;
- заменить или отремонтировать водосточную систему;
- отремонтировать придомовые пожарные лестницы;
- восстановить или заменить кровельное покрытие;
- отремонтировать придомовые козырьки;
- отремонтировать отмостку;
- отремонтировать наружные стены лифтов.
Обратите внимание => Как ликвидировать ооо если деятельность не велась
Что такое отмостка
В своде норм и правил обозначено, что вокруг дома, а точнее по его периметру, обязательно надо закладывать отмостки, размеры которых строго регламентированы этими правилами и нормативами. По сути, отмостки – это не что иное, как дорожка (тротуар), которая проложена под уклоном от стен дома в сторону открытого грунта. И ее основное назначение – отвод стекающей с крыши дома воды: дождевой или талой, от фундамента строения. Именно таким образом увеличивается эксплуатационный ресурс фундаментной конструкции.
Необходимо отметить, что сама отмостка – это непростой строительный элемент, потому что это не просто залитый бетон или уложенный асфальт. Отмосткам предъявляются дополнительно и определенные эстетические качества. Поэтому их чаще покрывают современными прочными строительными материалами, к примеру, тротуарной плиткой или брусчаткой.

Бетонная отмостка вокруг дома Источник sevparitet.ru
Но так как эти стройматериалы, и другие в том числе, укладываются по определенной технологии, соответственно отмостки в своем составе имеют две части:
- Внешняя. Это и есть тот самый отделочный материал, который надо укладывать под уклоном. При этом по технологии данный слой должен плотно прилегать к поверхности фундамента, создавая герметичный водонепроницаемый стык соприкосновения. Задача внешней части – не дать проникнуть влаге к фундаментной конструкции, расположенной ниже нулевой отметки здания.
- Внутренняя. По сути, это часть выполняет функции прочной основы под облицовку. Поэтому ее закладывают в траншею, размеры которой определяются требованиями СНиПа. Сама же внутренняя часть отмостки – это несколько слоев: подушка из песка и щебня, арматурный каркас, утеплитель и бетонный раствор. При этом у основы есть еще одна функция – не дать морозному пучению грунта привести в негодность отмостку.

Бетонная основа отмостки для дальнейшей облицовки Источник www.stroy-birzha.ru Итак, в первую очередь отмостки сооружаются с целью – не дать влаге и воде, падающей с крыши дома, негативно воздействовать на фундамент сооружения. Соответственно увеличивается срок эксплуатации последнего. Но кроме этого у отмостки есть и другие функции:
- эффективный отвод воды от дома;
- противостояние корням растений, которые могут разрушить фундаментную конструкцию;
- предохранение грунта от промерзания;
- выполнять функции дополнительного слоя утепления подвального помещения;
- по отмостке удобно перемещаться вокруг постройки;
- привлекательный внешний вид, который украсит загородный участок.
![]()
Отмостки из природного камня Источник besplatka.ua
Технология формирования отмостки
Итак, разобравшись со всеми параметрами и материалами, переходим к процессу сооружения окантовки фундаментной конструкции. При кажущейся простоте это на самом деле непростой процесс. И каждая его операция требует особого подхода. Ведь от прочности и надежности заливаемого элемента зависит срок эксплуатации фундамента, а соответственно и дома.
- Начинать закладку отмостки надо с разметки, где в основу конструкции закладывается ширина ленты. Этот параметр откладывают от стен дома по всему периметру строения. После чего выкапывают траншею, глубина которой определяется заранее.
- Далее в подготовленную траншею засыпают песок, который выравнивают и утрамбовывают. Минимальная толщина слоя – 10 см.
- Далее засыпают гравийный или щебеночный слой, который также выравнивают и утрамбовывают. Толщина – 15 см.
Теперь надо решить – будет ли отмостка с утеплением или без. Сегодня все чаще сооружают первый вариант, тем самым добиваются дополнительной теплоизоляции подвала или цокольного этажа загородного дома. Для этого можно использовать керамзит, перлит, вспученный вермикулит, пенополистирольные плиты.

Как формируют армирующую бетонную основу отмостки Источник pogreb-podval.ru
Обратите внимание, если сооружается утепленная отмостка, то придется выкапывать траншею вокруг дома глубже с учетом толщины теплоизоляционного слоя. Итак, утеплитель уложен (засыпан) можно переходить к формированию бетонной основы
Для этого внутрь на теплоизоляционный слой укладывают армирующий каркас, изготовленный из стальной или стекловолокнистой арматуры. Можно использовать металлическую сетку, к примеру, штукатурную или рябицу. Необходимо отметить, что между утеплителем и армирующим каркасом должно быть небольшое расстояние. Все дело в том, что армокаркас должен располагаться в теле бетонного основания, тем самым усиливая и упрочняя его
Итак, утеплитель уложен (засыпан) можно переходить к формированию бетонной основы. Для этого внутрь на теплоизоляционный слой укладывают армирующий каркас, изготовленный из стальной или стекловолокнистой арматуры. Можно использовать металлическую сетку, к примеру, штукатурную или рябицу. Необходимо отметить, что между утеплителем и армирующим каркасом должно быть небольшое расстояние. Все дело в том, что армокаркас должен располагаться в теле бетонного основания, тем самым усиливая и упрочняя его.
Бетон заливают до определенной высоты, которая определяется высотою внешнего края отмостки. Она должна составлять 5 см минимум. И это с учетом облицовки.
И последний этап – отделка. Кстати, именно в зависимости от внешнего покрытия отмостки делятся на три разновидности.
Технологии гидроизоляция отмостки вокруг дома своими силами
Строителями может быть выполнена гидроизоляционная отмостка своими руками, так как для этого не обязательно иметь специальное образование и сложную строительную технику. Стоит отметить, что планируя без помощи сторонних специалистов провести весь комплекс монтажных мероприятий, владелец постройки должен закупить необходимый материал и инструмент (можно взять в аренду).

Гидроизоляция вокруг деревянного дома или кирпичной постройки должна проводиться после тщательной подготовки. В первую очередь потребуется удалить вокруг дома почву и произрастающую растительность. Желательно освободить от грунта территорию (по всему периметру строения), ширина которой составляет 1,3 метра от фундаментной конструкции.
Некоторые люди выбирают примитивный вариант отмостки (бюджетный), для которой используются недорогие насыпные материалы. В этом случае на подготовленные участки укладывается слой из глины, который в обязательном порядке утрамбовывается, а в местах соприкосновения с домом промазывается растопленным битумом. В качестве гидроизоляционного материала можно задействовать обычный рубероид, который укладывается между фундаментом и слоем отмостки.
Еще одним бюджетным вариантом возведения гидроизоляционной отмостки является создание опалубки, в которую впоследствии заливается бетон. Такая конструкция сооружается вокруг дома из влагостойкой фанеры или деревянных элементов. В обязательном порядке строители должны сформировать уклон, который предотвратит скопление влаги возле фундамента.
Отмостка из бетона
Окрасочная гидроизоляция
Защита от влаги основания отмостки с окрасочной гидроизоляцией отличается дешевизной и простотой монтажа. Перед обработкой поверхности цоколя, ее необходимо загрунтовать битумной мастикой. После этого на грунтовочный слой с помощью щетки наносится битумно-полимерный, цементно-полимерный, битумный или полимерный окрасочный состав.
Полезно! Если состав наносится на бутовые стены, их необходимо предварительно разровнять.
Битумная мастика наносится 2-3 тонкими слоями толщиной не более 2 мм. После обработки поверхность проверяется на наличие трещин, вздутий и прочих дефектов. Если таковые обнаруживаются, то поверхность зачищают и повторно покрывают ее гидроизолирующим составом.

Стоит учитывать, что при работе с горячими материалами, необходимо придерживаться следующих мер предосторожности:
- Котел для варки битума нужно установить под небольшим углом, чтобы расплавленная жидкость не попала в огонь. Также рядом нужно подготовить песок и огнетушитель.
- При использовании нескольких марок битума – сначала расплавляется более низкая марка, а затем высокая. Если в горячий бетон добавить битум низкой марки, то это приведет к быстрому пенообразованию, из-за чего состав может вылиться.
- Количество битума в котле не должно превышать 2/3 объема емкости.
- Чтобы избежать горячих брызг, медленно опускайте куски битума по борту котла.
- Работать с расплавленной мастикой можно только в защитной одежде.
Почему конструкция может прийти в негодность
«Защитный пояс» вокруг дома должен служить десятки лет, но недочёты на этапах проектирования, сооружения конструкции и некачественные материалы могут свести усилия и финансовые затраты к нулю.
- лента уже отвеса крыши, поэтому на участке вокруг дома плохо отводится вода и земля размывается;
- несоблюдение технологии при укладке слепой зоны «пирога»;
- отсутствие деформационного зазора между кожухом и основанием;
- в основании полужесткой или мягкой конструкции не проложен дополнительный гидроизоляционный пласт;
- плохо обработаны компенсационные швы при сооружении монолитной ленты;
- слишком тонкая керамическая плитка;
- дефекты в бетоне и асфальтобетоне после заливки;
Причиной разрушения манжеты подстенка могут стать грызуны, если проложен утеплитель из пенопласта. Также грибки и плесень разъедают органические ряды, не обработанные антисептиком.
Сооружение ленточной защиты для дома должно проводиться параллельно с облицовочными работами стен, поэтому нельзя откладывать возведение защиты на длительный период. За несколько месяцев паводковые воды и атмосферные осадки размоют почву, что приведёт к разрушению здания.
Распространённые ошибки
Трещины в стенах, покосившиеся углы, плесень на стенах, вода «стоящая» в подвалах вот не полный перечень проблем, которые возникают у хозяев дома, если при монтаже ленточного кожуха были допущены ошибки.
- Недостаточная «проливка» песчаной подушки не даёт возможность плотно утрамбовать песок, который служит барьером от проникновения талых вод под фундамент.
- Отсутствие водонепроницаемой глиняной прослойки в одном из слоёв подземной части кожуха.
- При заливке монолита используется слишком тонкий пласт бетонной или асфальтной массы.
- Жёсткая конструкция не имеет опалубки и не армирована.
- Отсутствие деревянных или резиновых усадочных швов, актуальных на неустойчивых грунтах.
- Размывке основания способствует прерывистое по периметру защитное покрытие.
Гидроизоляция и дренаж
Для стока воды по наружному краю отмостки делается мелкие камешки. Тут можно вымостить из камня канавки. Снизу застилается гидроизоляция. Можно просто распилить вдоль и выложить асбоцементную либо пластиковую трубу.
Она выполняется с уклоном к дренажному колодцу.
Можно использовать готовые каналы либо лотки для дренажа с сетками сверху.
Бюджетным решением является применение закрытого дренажа. Для этого в дрену укладывается геотекстиль, который заполняют щебнем, а потом оборачивают сверху той же тканью и засыпают песком. Гидроизоляция под отмостку и мелкие камешки делается как одно целое, чтоб вода не уходила в грунт.
Скрытая отмостка вокруг дома
Скрытая отмостка
Идея разбивать газоны прямо у стены постройки пришла к нам из Западной Европы. Поэтому можно воспользоваться опытом зарубежных мастеров по ландшафтному дизайну и скрыть гидроизоляционную защиту простым способом.
После того как убирается верхний плодородный слой почвы по задуманным размерам, пространство засыпают песком (10–15 см), и накрывают мембраной (шипами вниз). Затем полотно снова укрывают песком и щебнем.
Финишным слоем может стать земля, где сеются растения или разноцветная мраморная крошка. Идеи декорирования зависят от фантазии хозяина участка.
Идеи декора можно почерпнуть в интернете на форумах ландшафтного дизайна.
Размеры отмосток по СНиП
Основной параметр – это ширина отмостки. В своде норм и правил указывается, что этот размерный показатель зависит от нескольких факторов, а именно от:
- типа грунта на загородном участке;
- степени просадки почвы;
- ширины выступа карнизного свеса крыши;
- архитектурных особенностей здания.
Что касается зависимости от типа грунта, то здесь необходимо обозначить два вида почвы.
- Это грунты, устойчивые к деформационным нагрузкам. Здесь имеются в виду нагрузки от собственной массы. Степень просадки таких почв не превышает 50 мм.
- Грунты, которые восприимчивы к нагрузкам. Их степень просадки больше 50 мм.
Так вот если на загородном участке расположены грунты первой категории, то ширина отмостки должна быть в пределах 150 см. Если второй категории, то 200 см.
Определить тип грунта можно, передав почву на анализ. Или другой вариант – обратиться в геодезическую службу района.

Минимальная ширина отмостки по СНиП Источник ok.ru
Но есть в СНиПе так называемый минимальный параметр ширины. Он определен диапазоном 80-100 см
При этом важно учитывать ширину свеса крыши дома. То есть первый параметр должен быть больше второго на 20-30 см
Получается так, что стекающая с крыши вода должна попадать на отмостку и по ней удаляться подальше от фундамента здания.
Но при этом в СНиПе указывается о пропорциях отмостки и здания, а также зданиях соседних. Необходимо строго следить за этими пропорциями, потому, к примеру, узкая дорожка вокруг дома может не вписаться в общий экстерьер участка в целом.

Узкая отмостка смотрится некрасиво Источник pinterest.com
Угол наклона отмостки
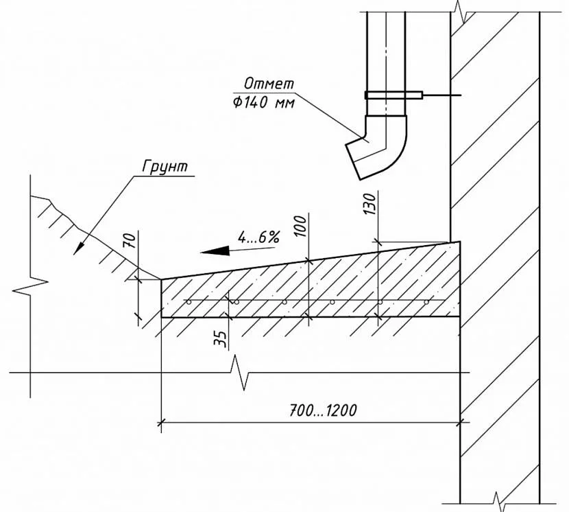
Переходим к не менее важному параметру – уклону отмостки. Именно от него зависит, как дождевая и такая вода будут отводиться от здания
В СНиПе четко обозначено, что минимальный угол наклона должен варьироваться в пределах от 2° до 3°. В своде также обозначен и другой показатель, связанный с уклоном. Это толщина сооружения около фундамента. Она должна быть равна 10-15 см. А толщина внешнего края – 5-10 см.
![]()
Оптимальный угол наклона отмостки Источник cokr54.ru
Но с толщиной отмостки не все так просто, поэтому разберем и этот размер.
Требования к толщине
В основу этого габаритного размера вкладывается марка бетона, используемого для заливки основы под облицовку. Чем она больше, тем меньше толщина. Но необходимо понимать, что бетонный слой – не единственный в конструкции отмостки. Здесь надо будет учитывать дополнительно песчано-гравийную подушку. А она обычно засыпается толщиною 5-15 см в зависимости от типа почвы на загородном участке. Чем мягче грунт, тем толще подушка.
![]()
Толщина окантовки зависит от толщины укладываемых слоев Источник pobudova.in.ua
Материалы
Отмостка может быть:
- насыпная из глины, покрытая сверху щебенкой;
- из глины и щебня, с дополнительной гидроизоляцией;
- из бетона (с армированием или без такового), который заливается на месте;
- из готовых железобетонных плит.


Для гидроизоляции отмостки используют различные вариации изоляции.
Изоляция может быть: рулонной, проникающей, можно использовать мастику, ПВХ-пленки, мембраны.
- Рулонную (рубероид, гидростеклоизол) изоляцию следует использовать лишь в том случае, когда перепад высот вокруг фундамента минимальный.
- Рулонные, используемые для кровель – геотекстиль, полипропилен, рубемаст.
- Битумная мастика. Каждый слой 2-3 миллиметра наносится друг на друга. Необходимо не допустить вздутия и трещины.
- Современные технологии позволили изобрести еще один вид изоляции – проникающую. Это вещество, состав которого проникает в материал отмостки (будь то асфальт или бетон), и закупоривает поры и заполняет микротрещины.
- Гидроцементы и асфальтобетоны.


Если конструкция требует ремонта
Из-за недостаточного тромбования песка происходит усадка отмостки, что в итоге приводит к трещинам и её отрыву от строения
Через один–два сезона ленточный пласт начинает разрушаться
Появляются трещины в монолите, нарушается герметичность меж плиточных швов (прорастает трава), площадка даёт просадку, брусчатка может треснуть или на ней в результате неосторожной эксплуатации появляются сколы
Большинство проблем можно решить самостоятельно, без демонтажа, не прибегая к помощи специалистов. На строительных форумах мастера делятся опытом, как придать инженерной конструкции первоначальный вид.
Как устранить трещины в монолите
- с помощью шпателя счищают отслоившиеся фрагменты и расширяют узкие щели;
- поверхность очищают и плоской кистью с искусственным ворсом грунтуют раствором глубокого проникновения (для укрепления поверхности);
- следующий этап – стяжка ремонтным раствором или смесью (продаётся в строительных магазинах). Добавьте в массу клей ПВА, он придаст дополнительную пластичность;
- после высыхания наложите на повреждённый участок гидроизоляционный пласт (полиэтилен или рубероид), с припуском на цоколь (8–10 см), и накройте армированной сеткой;
- залейте толстым слоем бетона (не менее 6–9 см).
После полного высыхания поверхность выравнивают и шлифуют деревянной тёркой.
Мелкие огрехи, пока они не переросли в большие повреждения, можно загрунтовать и заделать шпатлёвкой. Если глубина зазора свыше 5 мм, его заливают водно – цементной смесью (консистенция кефира), с добавлением жидкого стекла.
Ремонт плитки
Если усиленная нагрузка на покрытие из тротуарной или керамической плитки привела к сколам или трещинам отдельных элементов, их сначала аккуратно снимают. Пустые ячейки заполняют песком, и кладут новые детали.
Иногда, в результате неправильной укладки подушки, участки из бруска проседают. В этом случае снимают повреждённый пласт, досыпают слои щебня и песка в повреждённую зону, и перестилают отрезок территории заново.
Если на участке соединения цоколя и «защитного пояса» образовались трещины, их устраняют с помощью пластичных смесей, а затем маскируют с помощью декоративных элементов (вставки, откосы, бордюры).
Зачем нужна отмостка
Полоса покрытия из различных материалов, расположенная по периметру строения и прилегающая к нему, несёт не только декоративную функцию. Чтобы здание не «поплыло» со временем из–за скопления влаги, нужна влагонепроницаемая, устойчивая к внешним воздействиям отмостка вокруг дома.
Ещё одна задача «дорожки»,- защита фундамента от промерзания. Утеплитель между слоями отмостка поможет снизить затраты на отопление здания в холодный период времени, что актуально в северных широтах.
Конструкция отмостки – сложное сооружение, состоящее из двух или трёх слоёв (декоративное покрытие, гидроизоляционные настилы, утеплители).
В качестве основания используется щебень, керамзит, глина или песок. Подстилка образовывает плотную и ровную поверхность, для того чтобы ровно уложить верхний слой.
Отмостка не только защищает фундамент, но и является частью ландшафтного дизайна
Защитная роль отмостки
Предотвращение отрицательных последствий намокания фундамента и грунтов в его близости осуществляется сооружением отмостки вокруг всего здания. Это твердая, прочная водонепроницаемая полоса, шириной 0.9–1.3 метра, которая имеет уклон в сторону от дома. Многие думают, что отмостка — это тротуар вокруг дома. Подобно кровле, которая защищает весь дом от атмосферных осадков, отмостка защищает самое главное, на чем этот дом стоит — фундамент. При строительстве жилых домов нормативные документы однозначно и четко указывают на необходимость сооружения этой части, сразу, после возведения здания.
Бывает, что в ИЖС, при самостоятельном и медленном возведении дома, сооружение отмостки вокруг него откладывается на неопределенный срок. Этого делать не следует.
Ремонт отмостки при капитальном ремонте фасада МКД
Что уже пробовали для решения этого вопроса: перечень работ по капитальному ремонту зданий и сооружений Восстановление существующей отмостки вокруг здания (более 20% общей площади отмостки) (Постановление Госстроя СССР от 29.12.1973 N 279), а согласно Методическим рекомендациям по формированию состава работ по капитальному ремонту многоквартирных домов, финансируемых за счет средств, предусмотренных Федеральным законом от 21 июля 2007 года N 185-ФЗ «О Фонде содействия реформированию жилищно-коммунального хозяйства» ремонт отмостки относится Ремонт подвальных помещений, относящихся к общему имуществу в многоквартирных домах (Раздел IV). Относится ли к капитальному ремонту фундамента ремонт омостки?
Согласно предписанию требуется устранить неисправное и частичное отсутствие отмостки по периметру дома, в тоже время необходимо выполнить капитальный ремонт фасада (требуется штукатурка и покраска более 50 %). Можно ли попробовать отнести работы по ремонту отмостки к капитальному ремонту фасада?
Что это такое?
Для начала необходимо понять, что же такое «отмостка». Словари представляют это слово как асфальтовая или бетонная полоса, предназначенная для водоотвода дождя и паводков от фундамента здания. Кроме этого, она:
- исключает избыточное увлажнение фундамента и прилегающих к ней грунтовых вод, способных размыть конструкцию и дать чрезмерную усадку;
- защищает здание от разросшихся корней деревьев близ дома.

Отмостка – это всегда полоса по периметру здания с углом наклона от дома. Такой угол позволяет воде скатываться вниз, не задерживаясь у основания. Отмостка состоит из:
- подстилочного слоя;
- наружного слоя.
Вид отмостки определяется по типу материала наружного слоя. Она может быть выполнена из глины и щебня, бетона, асфальта и тротуарной плитки.


Необходимые материалы для проведения гидроизоляции отмостки

Выбирая тот или иной способ гидроизоляции и материалы для обустройства отмостки, нужно учитывать ее конструктивные особенности. Сделать это можно с помощью нескольких материалов:
- Мастики на битумной основе. Являются оптимальным вариантом для обеспечения защиты поверхности фундамента от воды. Используются при устройстве насыпных отмосток.
- Рулонная гидроизоляция. К ней относятся полипропиленовые, поливинилхлоридные пленки и разновидности рубероида. Укладку этих материалов рекомендуется сочетать с нанесением битумной мастики на фундамент, чтобы получить герметичное покрытие.
- Гидроцемент или асфальтобетон. Получаемые в результате твердые плиты надежно защищают фундамент дома от воды.
- Проникающие составы на полимерной основе. Наносятся на поверхности, имеющие пористую структуру. Глубоко проникая в материал и создавая водоотталкивающий барьер, они надежно защищают его. Обладают стойкостью к воздействию ультрафиолетового излучения и температурным перепадам. Препятствуют возникновению плесени.
Заключение
Характеристики фундамента снижаются при отсутствии его надежной защиты от воздействия влаги. Гидроизоляция и качественная отмостка играют в этом главную роль, поэтому предусматривать ее необходимо еще на этапе проектирования. Выбор того или иного типа конструкции зависит от многих факторов: климатических и геологических условий участка, конструкции и дизайна дома, наличия в продаже необходимых материалов и финансовых возможностей домовладельца.
Для того чтобы оградить здание от нежелательной влаги и талого снега, гидроизоляция отмостки приобретает важное значение. Разберемся, как правильно выполнить этот вид работ































