Кровля каркасного дома
Крыша также является очень важным элементом, и по этой причине не стоит экономить на материале для нее, качественно сделанная кровля надолго убережет ваше жилье от протечек и будет сохранять уют и тепло вашего дома.
Для монтажа крыши требуется:
- Стропильный брусок с сечением 50х150 мм;
- Материал для обрешетки – рассчитывается, исходя из размеров и вида вашей кровли;
- Расходники — гвозди, уголки и саморезы;
- Материал для утепления, это может быть как пенопласт, так и базальтовая вата;
- Гидро- и пароизоляционные материалы;
- Монтажная пена для заделывания щелей и стыков;
- Ну и, конечно же, само покрытие: шифер, металлочерепица, рубероид или др.
https://youtube.com/watch?v=tbRyV8g4G10
Проемы, окна и двери
Расценки на окна и двери зависят от материала, из которого они изготовлены, и если это стеклопакеты, то от количества камер, от размера и наличия створок. Металлические и пластиковые двери на порядок дороже, нежели изделия из дерева, на цену также повлияет система замков и ручек.
Для каркасного строительства не применимо использование окон с шириной, превышающей 1200 мм, так как это существенно увеличит шаг между стоек, минимум в 2 раза.
Так, для дома с размерами 6х5 метров можно заложить в проект наличие 7-8 окон с размерами 1200х1100 мм (в среднем, по 2 оконных проема на сторону, в зависимости от местонахождения санузла) и порядка 5 дверных проемов. Общие расходы на это поможет высчитать онлайн калькулятор строительства каркасного деревянного дома.
Конечно, при возведении такого строения своими руками можно упустить некоторые детали, но, в любом случае, это получается выгоднее, чем если вам такой дом установит бригада подрядчиков. Но перед таким решением стоит понимать – это довольно трудоемкое занятие и требует больших временных затрат, а в силу того, что у вас нет опыта, можно совершить ошибку, и потом все придется переделывать.
Поэтому изначально стоит взвесить все «за» и «против» и если вы все-таки решили делать свой дом своими руками, то обязательно рассчитайте расходы перед началом возведения здания.
На нашем сайте можно найти подходящий онлайн калькулятор, вам остается только грамотно заполнить поля, после чего накинуть 10-15 % на неучтенные промахи и приниматься за строительство.
Преимущества онлайн калькулятора
Бесплатный онлайн калькулятор расчета каркасного дома доступен каждому. Это простые программы, которые можно без труда найти в интернете. Сервисы разработаны для тех, кто не сталкивался со строительством до этого, они просты и удобны.
Онлайн ресурсы учитывают необходимость использования основных и вспомогательных материалов. Такой вариант лучше, чем самостоятельный расчет.
Воспользовавшись калькулятором, можно понять, располагаете вы нужной финансовой суммой для строительства или лучше пересмотреть свои требования к зданию. Некоторые принимают решение возвести недорогой одноэтажный коттедж, который в будущем можно расширить за счет обустройства мансарды.
Устройство каркасного дома
Иногда профессиональные строители также используют калькулятор расчета каркасного дома. Это многофункциональная платная версия, с помощью которой составляют смету. Однако вычисления осуществляются без учета оплаты труда строителей, доставки материалов на строительный участок, аренды оборудования. Задача специалиста — предусмотреть эти нюансы.
Заключение
Чтобы предварительно рассчитать стоимость каркасного дома можно воспользоваться удобными онлайн калькуляторами. Они дают возможность хорошо обдумать будущее возведение коттеджа и подготовиться к общению с проектировщиками и строителями. Но ни в коем случае не стоит воспринимать полученные с помощью онлайн считалок данные как истину в последней инстанции. Точный расчет каркасного дома могут сделать только специалисты, так как для создания полной сметы потребуется учесть большое количество переменных, на которые ни один калькулятор попросту не рассчитан.
Фундамент каркасного дома
Любое строительство начинается снизу, и поэтому расчет производить мы начнем с фундамента. Известны три основных вида фундаментов для каркасного дома — столбчатый, ленточный и свайно-ростверковый. Фундамент должен рассчитываться из таких данных, как:
- Материал будущего строения;
- Размер и нагрузка вашего дома;
- Заболоченность почвы;
- Уровень и наличие грунтовых вод;
- Климатические условия в вашем регионе (глубина промерзания грунта).
Как правило, столбчатый фундамент используется для возведения невысоких строений, это небольшие площади, зачастую просто дачные строения.
Свайно-ростверковый фундамент подходит больше для более высоких домов, в несколько этажей и выше, а также строится в местностях, где имеются проблемы с почвой и с перепадами температур. В этом случае расчет фундамента должен включать длину столбов и свай, а также их количество.
Ленточный фундамент рассчитывается, исходя из глубины траншей под фундамент, типа арматуры и панелей для опалубки. При установке опалубки и самостоятельном заливании цемента можно сэкономить не менее 30 %, процент зависит от размеров строения.
Учитывать необходимо все, от стоимости песчаной подушки, засыпанной на дно траншей для выравнивания грунта, до вида и сечения приобретаемой арматуры и использованной опалубки
Ну и, конечно же, очень важно, какую марку бетона вы будете использовать. Для более точного расчета всех затрат рекомендуется использовать калькулятор для строительства каркасного дома, который доступен онлайн
Смонтированный фундамент требуется качественно просушить; период сушки варьируется от пары недель до полугода и больше, хотя в теплое время года сроки значительно сокращаются.
Стойки и стены каркасного дома
Для более точного расчета стен и стоек вашего строения, необходимо иметь данные о том, какова площадь вашего дома, высота (этажность), есть ли внутренние перегородки (комнаты) и какова общая нагрузка. Если строение предполагает более одного-двух этажей, стены необходимо сделать толще, а также крепче должны быть перекрытия и несущие конструкции.
Брусок может быть различных стандартов, сечением 50-100 мм или 100-200 мм. Важным фактором при расчете стоимости бруска для стоек является влажность материала, качество и порода самого дерева. В зависимости от вида утеплителя и обшивки рассчитывается и количество стоек. Толщина и материал утеплителя напрямую влияет на сечение бруска для стойки.
Высота опор напрямую зависит от того, сколько этажей вы собираетесь строить, но, как правило, это не менее 2,5 м, в менее значимых помещениях, таких как кладовки или санузел, может составлять порядка 2 м. В зависимости от ширины утеплителя рассчитывается и шаг между опорами, на это также влияют и монтируемые панели.
При самостоятельном строительстве экономия средств может составлять до трети от той суммы, которую вам предложат подрядчики. Но для таких работ необходимо наличие дополнительных расходников:
- Специальные саморезы;
- Оцинкованный уголок;
- Ножовка;
- Сверла;
- Гвозди;
- Молоток.
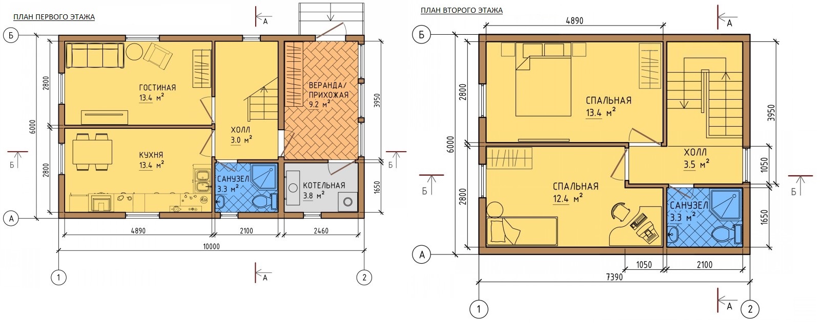
Проекты каркасных домов 100-150 кв.м.
Проект КД-1 (стандарт). Каркасный дом 6х10м 105м2 с жилой (тёплой) мансардой и верандой. Высота потолков 2,3м, высота в коньке 6,5м, утепление 150мм базальтовой ваты, 100мм вертикально и 50мм горизонтально, можно увеличить общую толщину утеплителя до 200мм.
Первый этаж 60 м2 : Кухня 12м2, Комната 12м2, Прихожая 7м2, с/у 2,9м2, Котельная-тамбур 5м2, Веранда 18м2.
Второй этаж 42 м2 : Большая Комната 17,5м2, Маленькая Комната 11м2.


Проект КД-11 (премиум). Отличие данного проекта от Проекта КД-1 (стандарт) в том, что, не надо строить отдельное крыльцо. Крыльцо в этом проекте возведено под единую крышу с верандой, что предаёт дому более законченный и лаконичный вид. Каркасный дом 6х10м 102м2 с жилой (тёплой) мансардой и верандой. Высота потолков 2,3м, высота в коньке 6,5м, утепление 150мм базальтовой ваты, 100мм вертикально и 50мм горизонтально, можно увеличить общую толщину утеплителя до 200мм.
Первый этаж 60 м2 : Кухня 12м2, Комната 12м2, Прихожая 7м2, с/у 2,9м2, Котельная-тамбур 5м2, Веранда 13,5м2.
Второй этаж 42 м2 : Большая Комната 17,5м2, Маленькая Комната 11м2.


Проект КД-2 (люкс) для постоянного проживания. Каркасный дом 6х10.5м 121м2 с жилой (тёплой) мансардой. Высота потолков «резиновая» стандартно 2,4м, но высоту первого этажа можно увеличить до 2,5м (без изменения проекта и потери в качестве), второй этаж 2,4м, высота в коньке 7м, утепление 200мм базальтовой ваты, 150мм вертикально и 50мм горизонтально, можно увеличить общую толщину утеплителя до 250мм.
Первый этаж 61 м2 : Комната-спальня 8м2, Гостиная 13м2, Кухня 13м2, с/у 4м2, Котельная 3,5м2.
Второй этаж 59 м2 : Спальня 12м2, Комната-спальня детская 8м2, Кабинет 13м2 , с/у 4м2, Подсобное помещение 3,5м2.


Проект КД-21 (люкс) для постоянного проживания. Каркасный дом 6х10м 120м2 с жилой (тёплой) мансардой. Высота потолков «резиновая» стандартно 2,4м, но высоту первого этажа можно увеличить до 2,5м (без изменения проекта и потери в качестве), второй этаж 2,4м, высота в коньке 7м, утепление 200мм базальтовой ваты, 150мм вертикально и 50мм горизонтально, можно увеличить общую толщину утеплителя до 250мм.
Первый этаж 61 м2 : Комната-спальня 8м2, Гостиная 13м2, Кухня 13м2, с/у 4м2, Котельная 4,6м2.
Второй этаж 59 м2 : Спальня 12м2, Комната-спальня детская 8м2, Кабинет 13м2 , с/у 4м2, Подсобное помещение 4,6м2.


Проект КД-29 (люкс) для постоянного проживания. Каркасный дом 8х8м 148м2 с жилой (тёплой) мансардой. Высота потолков «резиновая» стандартно 2,4м, но высоту первого этажа можно увеличить до 2,5м (без изменения проекта и потери в качестве), второй этаж 2,4м, высота в коньке 7м, утепление 200мм базальтовой ваты, 150мм вертикально и 50мм горизонтально, можно увеличить общую толщину утеплителя до 250мм.
Первый этаж 64м2 : Высота потолков 2,6м, Гостиная 16м2, Кухня/столовая 19м2, с/у 5,5м2, Прихожая 3м2, Прихожая 2м2, Хол 7м2.
Второй этаж 64м2 : Высота потолков 2,6м, Зал 16м2, Спальня 9м2, Спальня 11,5м2, с/у 7м2, Коридор 6м2, Кладовая 2м2.


Проект КД-4 (люкс-комфор). Каркасный дом 10 х 13м 126м2 для постоянного проживания. Высота потолков 2,8м, высота в коньке 5,5м, утепление 200мм базальтовой ваты, 150мм вертикально и 50мм горизонтально, можно увеличить общую толщину утеплителя до 250мм.

Подробное описание и варианты отделки: Проект КД-4 (люкс-комфорт).
Тёплый дом 126 м2
Спальни 2-3 комнаты: 19,2 и 15,9м2 ещё одна 11,2м2 если с/у перенести на место котельной,
Гостиная/Столовая 33,5м2,
Кухня 10,5м2, Котельная 4,1м2,
с/у 11,2м2, Прихожая 5,6м2, Терраса открытая.
Проект КД-45 (супер-комфорт). Каркасный дом 9 х 12м 108м2 для постоянного проживания. Высота потолков 2,8м, высота в коньке 5,5м, утепление 200мм базальтовой ваты, 150мм вертикально и 50мм горизонтально, можно увеличить общую толщину утеплителя до 250мм.

Подробное описание и варианты отделки: Проект КД-45 (супер-комфорт).
Тёплый дом 108 м2
Спальни 3 комнаты: 13,3м и 13,3м2 спальня детская 12,3м2, с/у 6,3м2,
Кухня 15,3м2 Гостиная 15,3м2,
Коридор 7м2, Котельная 6,3м2,
Прихожая 5,3м2, Прихожая 2,52.
Проект КД-8 (престиж). Каркасный дом 148м2 с жилой (тёплой) мансардой и большим балконом для постоянного проживания. Высота потолка первый этаж 2,6м, второй этаж 2,5м, дом 8х9,4м, высота в коньке 8м, утепление 200мм базальтовой ваты, 150мм вертикально и 50мм горизонтально, можно увеличить общую толщину утеплителя до 250мм.
Первый этаж 76 м2 : Кухня столовая 14м2, Гостиная 22м2, Кладовая 3м2, с/у 2м2, Тамбур-прихожая 5м2, Котельная 6м2, Хол 10м2, Крыльцо 5м2.
Второй этаж 72 м2 : Спальня 14,5м2, Комната-спальня детская 14м2, Кабинет 10м2, Хол 3м2 С/у 10м2, Лоджия/балкон 7,4м2


Проекты каркасных домов 50-100 кв.м.
Проект КД-33 (стандарт-комфорт). Каркасный дом 7,5 х 10м 75м2 в один этаж для постоянного проживания. Высота потолков 2,7м, высота в коньке 5м, утепление 200-250мм базальтовой ваты, 150мм вертикально и 50мм горизонтально, можно увеличить общую толщину утеплителя до 250-300мм.
Одноэтажный тёплый дом 75 м2: Спальни 2 комнаты по 13,5м2, Гостиная/Столовая 11м2, Спальня детская 11м2, с/у 6м2, Прихожая 6м2.

Проект КД-3 (комфорт). Каркасный дом 7,5 х 12м 90м2 в один этаж для постоянного проживания. Высота потолков 2,7м, высота в коньке 5м, утепление до 200мм базальтовой ваты, 150мм вертикально и 50мм горизонтально, можно увеличить общую толщину утеплителя до 250мм.
Одноэтажный тёплый дом 75 м2 плюс Терраса 15м2: Спальни 2 комнаты по 13,5м2, Гостиная/Столовая 22м или 28,5м (в место котельной)2, Котельная 6,5м2, с/у 6м2, Терраса 15м2, Прихожая 6м2.

Проект КД-31 (комфорт).> Каркасный дом 7,5 х 12м 90м2 в один этаж для постоянного проживания. Высота потолков 2,7м, высота в коньке 5м, утепление до 200мм базальтовой ваты, 150мм вертикально и 50мм горизонтально, можно увеличить общую толщину утеплителя до 250мм.
Одноэтажный тёплый дом 75 м2 плюс Терраса 15м2: Спальни 2 комнаты по 13,5м2, Гостиная/Столовая 11м2, Спальня детская 11м2, с/у 6м2, Терраса 15м2, Прихожая 6м2.

Проект КД-17 (комфорт). Каркасный дом 6х6м, 72м2 с жилой (тёплой) мансардой и верандой. Высота потолков 2,5м, высота в коньке 7,4м, утепление 150мм базальтовой ваты, 100мм вертикально и 50мм горизонтально, можно увеличить общую толщину утеплителя до 200мм.
Первый этаж 36 м2 : Кухня 8,5м2, Гостиная 12,5м2, с/у 3м2, Прихожая 7,5м2.
Второй этаж 36 м2 : Спальня 10м2, Спальня детская 10м2, Хол 3м2, Гардероб 3м2.

Проект КД-171 (комфорт). Каркасный дом 6х8м, 84м2 с жилой (тёплой) мансардой и верандой. Высота потолков 2,5м, высота в коньке 7,4м, утепление 150мм базальтовой ваты, 100мм вертикально и 50мм горизонтально, можно увеличить общую толщину утеплителя до 200мм.
Первый этаж 48 м2 : Кухня 8,5м2, Гостиная 12,5м2, с/у 3м2, Прихожая 7,5м2, Терраса 12м2, Крыльцо 3м2.
Второй этаж 36 м2 : Спальня 10м2, Спальня детская 10м2, Хол 3м2, Гардероб 3м2.

Проект КД-12 (комфорт). Каркасный дом 6х7м, 84м2 с жилой (тёплой) мансардой и верандой. Высота потолков 2,3м, высота в коньке 6,5м, утепление 150мм базальтовой ваты, 100мм вертикально и 50мм горизонтально, можно увеличить общую толщину утеплителя до 200мм.
Первый этаж 42 м2 : Кухня 12м2, Комната 12м2, Прихожая 7м2, с/у 2,9м2, Котельная-тамбур 4м2.
Второй этаж 42 м2 : Большая Комната 17,5м2, Маленькая Комната 11м2.

«ДОМОКОМПЛЕКТ без цокольного перекрытия» — 1 042 607
— материал готов для монтажа стен и укомплектован по проекту. В данном случае дом полностью готов к сборке стен, перегородок, а также каркаса межэтажного перекрытия.
- Внешние стены — трехслойная СИП панель с ЦСП (h=от 2700 мм) толщиной 172 мм, утеплитель 148/198 мм на выбор: Пенополистирол или Изовер Сэндвич Лайф. Несущий каркас стен сухая калиброванная доска 46х145/195 мм. Сборка в стоимость не входит
- Внутренние перегородки-каркас из сухой строганной доски: несущие 46х145 мм. Сборка в стоимость не входит
- Межэтажное перекрытие: Балки перекрытия БДК 250/300/350х65 мм, верхняя поперечная обрешетка 22х90 мм, сплошной настил листы ЦСП 12-16 мм.
Звукоизоляционный и пароизоляционный материал приобретается по желанию заказчика дополнительно. Готовность комплекта под чистовую отделку. Сборка в стоимость не входит. - Доставка, сборка дома не входит в стоимость!
Цокольное перекрытие – 298 580 (только для свайного типа фундамента) – утепленный каркасный пол с обвязкой ростверком и сплошной настил листового материала (готовность под чистовую отделку). Сборка в стоимость не входит
| Характеристика домокомплекта для перевозки в евро фуре | ||
| Панели из ППС, т | Панели из ИЗОВЕР, т | Объём домокомплекта, м3 |
| 12,4 | 13,2 | 72 |
Вес панелей из ППС 12,4 (измерение в т)
Вес панелей из Изовер 13,2 (измерение в т)
Объём в машине 72 (измерение в м3)
* В данную комплектацию не входит фундамент и крыша. Его тип и стоимость определяется индивидуально в зависимости от особенностей вашего участка.
Дома 100-150 кв.м.
Размер строения: 6 на 10Площадь: 105 кв.м.


Данный дом быстро построить и в нем удобно жить, а стоимость строительства порадует ваш кошелек.
Размер строения: 6 на 10.5Площадь: 121 кв.м.


Отличительной чертой данного проекта является крыльцо, над которым можно разместить балкон большой площади. Кроме того, можно пристроить гараж.
Размер строения: 8.5 на 9.7Площадь: 148 кв.м.


Комфортабельный дом с очень красивым фасадом. Возможна установка камина в гостиной. Если требуется, то можно разделить кладовую на две части и сделать котельную в 9.5 квадратных метров.
Размер строения: 6 на 10Площадь: 102 кв.м.


Отличительная черта проекта — крыльцо в уровень с домом, что придает ему эстетический вид. Во время заливки фундамента выполняется отлив ступеней крыльца, что позволяет сэкономить бюджет строительства и ускорить его темпы.
Размер строения: 6 на 10Площадь: 120 кв.м.


Недорогой дом большой площади. Можно поменять котельную и санузел местами, либо организовать вход через последний. Возможна пристройка крыльца.
Размер строения: 6 (7.5) на 10Площадь: 137 кв.м.


Данный дом является просторным, комфортным и при том недорогим жильем. Имеется второй свет. Дома подобного типа называются «Обителью ангелов». Их отличает наличие эркера со вторым светом либо без него.
Размер строения: 8 на 9Площадь: 147 кв.м.


Проект предполагает возведение компактного, комфортного и удобного дома за разумную цену. Можно обустроить угловое патио площадью в 15 квадратных метров. Ниши на втором этаже предназначены для установки шкафов-купе. Внешний вид фасада имеет классический стиль, что обеспечивается пропорциями строения и крышей.
Размер строения: 8 на 8Площадь: 128 кв.м.


Просторный и бюджетный дом. Можно поставить камин, печь либо отопительный котел между кухней-гостиной.
Размер строения: 6 на 10Площадь: 104 кв.м.


Компактный дом с большими комнатами, верандой и котельной, предназначенный для круглогодичной эксплуатации.
Размер строения: 6 на 10Площадь: 120 кв.м.


Вместительный дом с пристроенным отапливаемым гаражом. Возможно изменить его расположение, разместив гаражное помещение по левой стороне здания.
Размер строения: 6 на 10Площадь: 120 + 15 кв.м.


Данный проект имеет крыльцо-террасу под одной крышей с основным зданием, а также метровые свесы кровли в скандинавской стилистике. Часть террасы можно трансформировать под котельную.
Размер строения: 7 на 10Площадь: 140 кв.м.


Большой дом с котельной. Возможно обустройство до пяти спален и двух санузлов.
Размер строения: 8 на 8Площадь: 128 кв.м.


Проект просторного дома, в гостиную можно установить камин. Прихожая может быть разделена на две части, одна из которых будет выделена под котельную. Второй этаж может вмещать до трех спален если урезать площадь санузла.






























