Проектирование систем оповещения
Разработка проектов систем оповещения и управления эвакуацией (СОУЭ) осуществляется на основании требований заказчиков, а также положений действующего законодательства. Основными нормативными документами при этом являются правила устройства электроустановок, ГОСТ 21.101-97, ГОСТ 27990-88 и пр.
Проектирование производится в несколько этапов:
- Обследование . На этой стадии осуществляются изучение и фиксация технических параметров объекта, которые необходимы для выполнения работ.
- Составление технического задания . Этот этап предусматривает создание исходного документа, в соответствии с которым будет проводиться проектирование. В ТЗ учитываются все технические и функциональные параметры, технико-экономические требования и показатели качества.
- Эскизный проект . Представляет собой предварительное решение или предложение. Он включает в себя структурную схему, спецификацию и краткое описание принципов работы. Как правило, эскизных решений достаточно для небольших и типовых проектов автоматической охранно-пожарной сигнализации и других систем.
- Технический проект . На этой стадии создается детальная документация со схемами, алгоритмами работы и описанием решений индивидуальных задач заказчика.
- Рабочая документация . Она представляет собой комплект документов, включающий в себя технический проект, чертежи, подробные монтажные схемы и пр. Рабочая документация является основой для проведения работ по установке систем.
Проектирование систем оповещения о пожаре
- выявление факта возгорания на ранней стадии;
- направление тревожного сигнала на приемно-контрольный прибор;
- подача команды для включения автоматического оборудования пожаротушения и противодымной защиты.
Концепция ОПС позволяет использовать их и как отдельный элемент, и как составную часть единой системы безопасности объекта.
Специалисты ООО «ПТГ «КОНТУР БЕЗОПАСНОСТИ», благодаря солидному опыту, готовы реализовать оптимальные конфигурации охранно-пожарных сигнализаций на базе российского и зарубежного оборудования. Среди используемых нами устройств — продукция таких марок, как «Болид», «Рубеж», Bosch, Esser by Honeywell и других.
Заказав проектирование систем охранно-пожарной сигнализации, вы сможете обеспечить своевременное предупреждение людей, находящихся в здании, о возникновении пожаров и других нештатных ситуаций. Правильно составленный и реализованный проект можно считать основным фактором возможного спасения жизни и здоровья людей, а также сохранения ценного имущества.
Состав системы оповещения
Принципиальная система оповещения о пожаре должна иметь следующую структуру:
- Аппарат, принимающий сигналы и рассылающий команды согласно заложенной программе или под управлением оператора;
- Оборудование для усиления мощности. Разделено на два типа, центральный усилитель и локальные, удаленные устройства;
- Устройства для организации удаленного рабочего места, выносные микрофоны или консоли;
- Эвакуационные световые знаки «ВЫХОД»;
- Оповещатель комбинированный светозвуковой (речевой);
- Рупоры, громкоговорители настенные или потолочные;
- Источники информации тревожного сигнала: цифровые записи, ретрансляционная сеть, приспособление, генерирующее тональный сигнал (сирена).
Читайте так же:
Оповещатель пожарный звуковой, разновидности и принцип действия устройства
От качества оповещателей, их размещения в помещении и наполненности всего здания этими приборами зависят жизни людей.
Уровень пожарной безопасности на объекте, который по своему назначению предусматривает наличие людей и обслуживающего персонала обеспечивается с помощью комплекса, в который входит пожарная сигнализация, автономная система тушения пожара, а также система оповещения о пожаре (СОУЭ). Именно на нее возлагается задача своевременной подачи информации присутствующему персоналу о начавшемся пожаре и эффективном управлении их эвакуацией.
Системы оповещения о пожаре
СОУЭ является многофункциональным комплексом, включившим в свой состав большой перечень организационных мероприятий, реализуемых в процессе эвакуации, а также набор специального оборудования, применяемого для эффективного предупреждения всех людей о потенциальной опасности. Благодаря этому можно избежать жертв и несчастных случаев во время пожара и его тушения.
Характеристики
Полная масса Рокота составляла 107 единиц. тонны, его длина 29 метров и максимальный диаметр 2,5 метра. Ракета на жидком топливе состояла из трех ступеней. Два нижних были основаны на Советский МБР УР-100Н; на первом этапе использовался РД-0244 двигатель, а вторая ступень использовала РД-0235. Третий этап был Бриз-КМ (русский: Бриз-КМ смысл Бриз-КМ), который имеет массу около 6 тонн при заправке топливом и способен летать в течение 7 часов и шесть раз повторно запускать двигатель во время полета, что позволяет выводить разные спутники на разные орбиты. Использованы все этапы UDMH (несимметричный диметилгидразин ) в качестве топлива и тетроксид диазота в качестве окислитель. В Стрела аналогичная ракета, также на базе SS-19.
«Для товарища или ради идеи»
Командир штурмового взвода с позывным Топал в свои 19 лет получил уже совсем не юношеский опыт: на его счету десять месяцев в горячей точке и два пулевых ранения.
Когда его мама умерла, а отец ушёл на фронт в 2014 году, мальчик был вынужден жить в приютах и интернатах.
«Детство, можно сказать, было, но и нет — по приютам и интернатам ездил. Такое яркое было детство», — смущённо улыбался Топал, когда беседовал с корреспондентом RT на передовой.
В армию он попал в начале спецоперации и теперь командует штурмовиками в составе 6-го казачьего полка — вместе с подчинёнными он одним из первых заходит в населённые пункты, чтобы выбить противника. Боец уже прошёл Попасную, Камышеваху и Новоалександровку.
«Он вылез из танка и лёг под забор: по нему работал пулемёт, они (ВСУ. — RT) не давали к нему подойти. Я подбегаю к нему, падаю на колено и чувствую жжение в груди — пуля попала», — несмотря на ранение, Топал смог вытащить танкиста из-под огня.
В другой раз штурмовик вёл группу по частному сектору ещё не освобождённого населённого пункта. Топал пошёл первым, чтобы проверить один из домов, и в этот момент снайпер ВСУ попытался его подстрелить. Пуля прошла по касательной к голове и задела ухо.
«Когда ты в бою, у тебя отключается режим самосохранения, ты как-то жизнь свою обесцениваешь. Потому что готов собой пожертвовать для товарища или ради идеи, — рассказал 19-летний командир. — Ты осознаёшь, что тебя в любой момент могут убить и либо ты умрёшь с пользой, либо будешь обузой».
Особенности проектирования системы пожарного оповещения и эвакуации людей
Выбор пожарных датчиков и извещателей для пожарного оповещения
При определении на стадии проектирования конфигурации СОУЭ необходим учет ряда факторов, в соответствии с которыми выбираются пожарные датчики, которые должны обнаруживать очаги пожара и дымообразования, а также электронный прибор, предназначенный для обработки сигналов тревоги и включения системы оповещения.
Пожарные датчики срабатывают:
- тепловые – на повышение температуры;
- дымовые – на частицы продуктов горения;
- электромагнитные – на наличие пламени;
- газовые – на газ, выделяющийся при горении;
- комбинированные – на сочетание факторов.
Пожарные извещатели могут быть ручными или автоматическими, световыми, звуковыми или речевыми. При выборе должны учитываться особенности охраняемых помещений. Так, в интернатах для слабослышащих инвалидов используются световые извещатели, а в помещениях с пребыванием людей с ослабленным зрением – звуковые, но во многих случаях используются комбинированные.
Специфика работы СОУЭ
В разделе 9 проектной документации на объект, разрабатываются принципиальные технические решения по конфигурации СОУЭ, а также конкретные способы передачи информации о возгорании и методы управления эвакуацией. В соответствии с типом СОУЭ оповещение о пожаре производится речевыми, звуковыми или световыми сигналами. Для управления эвакуацией используют:
- чтение текстов, препятствующих панике;
- речевые извещения о правильном направлении эвакуации;
- световые указатели правильного направления эвакуации;
- дистанционное открывание эвакуационных выходов.
В зависимости от путей и скорости распространения пламени и дыма, а соответственно от разделения объекта недвижимости на зоны оповещения и времени эвакуации из каждой зоны, определяется последовательность эвакуации по всему зданию, т.е. моменты включения оповещения о пожаре в каждой зоне и необходимость использования дополнительных путей эвакуации.
Что будет в альбоме рабочего проекта системы пожарного оповещения
Нормативная документация не регламентирует конкретный перечень листов рабочего проекта, однако существует ГОСТ Р 21.1101-2013 «СПДС. Основные требования к проектной и рабочей документации», где регламентирован перечень документов, которые должны быть в рабочем проекте.
Кроме общих данных, будут схемы:
- структурная системы;
- компоновки аппаратных шкафов;
- подключения центрального оборудования;
- размещения оборудования и прокладки кабельных трасс,
и прилагаемые документы:
- спецификация оборудования;
- кабельный журнал.
К альбому прикладывается акустический расчет системы оповещения о пожаре, документация на нестандартные изделия, а также методика испытания системы и регламент ее технического обслуживания. Отдельным томом рабочего проекта выпускается локальная смета на монтаж системы оповещения. Альбом в бумажном виде, а при необходимости и на CD диске передается заказчику.
АВТОМАТИЧЕСКИЕ УСТАНОВКИ ПОЖАРОТУШЕНИЯ (АУПТ)
В системах противопожарной защиты пожаротушение используется не так часто. Требуется оно в зданиях повышенной этажности, крупных торговых центрах.
По принципу действия пожаротушение бывает:
- порошковым;
- водяным;
- газовым;
- аэрозольным.
Каждый из этих типов обладает особенностями, определяющими область их применения.
Порошок причиняет минимальный вред товарно- материальным и иным ценностям, аппаратуре и оборудования. Им можно тушить электроустановки, находящиеся под напряжением. Стоят такие модули относительно недорого, просты в установке и обслуживании.
Однако, их нельзя применять в помещениях с нахождением людей, которые не успевают до начала тушения покинуть опасную зону. Это ограничение настолько неопределенно, что порошковое пожаротушения в местах массового скопления людей не устанавливают (от греха, так сказать).
Газовые противопожарные установки работают за счет ограничения в очагу пожара доступа воздуха. Отсюда и особенности их применения для тушения пожаров классов А, В и С и электроустановок под напряжением. Естественно, ограничения по отношению к зданиям и сооружениям с нахождением людей тоже что и у порошковых.
Кроме того, к помещениям, оборудуемым газовыми системами предъявляются повышенные требования к герметизации. Это естественно, объяснимо и очевидно.
Водяные АУПТ достаточно эффективны и безопасны, но при срабатывании ущерб могут причинить немалый.
Проверка систем (установок) автоматической противопожарной защиты
Невзирая на, казалось бы, высокие требования к регулярным поверкам оборудования таких систем, на самом деле, это не так.
Сегодня проверка комплекса АППЗ проста и наглядна в связи с высокой степенью компьютеризации; и визуальный осмотр, регламентные испытания аналогичны, как и для отдельных традиционных систем противопожарной автоматики, защитных огнестойких устройств и изделий.
Расшифровка СОУЭ

«Путеводная нить» СОУЭ дает возможность избежать паники и организованно вывести людей из опасных зон. Расшифровка СОУЭ, а это аббревиатура, показывает всю суть работы данного элемента пожарно-охранного комплекса. «Система Оповещения и Управления Эвакуацией», вот что такое СОУЭ. С появлением этой автоматики организация процесса спасения людей перешла на новый уровень.
Основная задача СОУЭ
Редкий человек, приходя в незнакомое здание, пойдет изучать схемы путей эвакуации в экстренных случаях, хотя заблудиться в лабиринте переходов несложно. Нужен грамотный помощник, который при необходимости укажет правильный путь.
Таким «провожатым» стала система СОУЭ. Главной ее задачей стало мгновенное оповещение людей, присутствующих в охраняемом периметре, о возникновении очага горения и организация потока, покидающего пределы опасной зоны.
Основные элементы СОУЭ

Основные составляющие СОУЭ
Комплектация СОУЭ несколько рознится в зависимости от типа, но основные элементы одинаковые. К ним относятся:
- приборы управления комплексом;
- извещатели, световые табло, оповещатели, акустические системы, указатели направления движения.
Все эти технические средства направлены на грамотную организацию людских потоков во время ЧС по путям эвакуации в безопасные зоны. Тем самым снижается риск гибели людей.
Выбор типа системы для различных объектов
Как частный дом отличается от промышленного предприятия, так и системы СОУЭ отличаются по типу, и грамотный подбор очень важен. Учитывается площадь, этажность, степень пожаро-взрывоопасности и т.д. защищаемых объектов. Также в расчет берется количество людей, одновременно прибывающих в строении, возраст и степень мобильности и т.п. Все нормативы указаны в таблице № 2, в разделе 7 СП 3.13130-2009. Нет абсолютно одинаковых сооружений, но все же усредненные, близкие по параметрам строения отдаются под охрану 5 типов СОУЭ.
Это интересно: Проводные пожарные извещатели: требования и принцип действия
Требования к противопожарной защите
Есть нормативные документы (ГОСТы, СНиП, СП), в которых обозначены требования к пожарной безопасности. Основными моментами являются:
- Установка системы безопасности осуществляются по заранее разработанному индивидуальному плану. Вносить правки после утверждения проекта запрещено.
- Системы предотвращения пожара должны оперативно реагировать на возгорание в любой части объекта.
- Оповещение о пожаре должно быть моментальным.
- Огнетушащие вещества не должны мешать свободному прохожу граждан и эвакуации.
- Пульт управления ставится в отдельном помещении, где за ним круглосуточно наблюдает обученный персонал.
- Пути эвакуации должны иметь извещатели и указатели направления движения.
- Автоматические объекты пожаротушения должны постоянно находиться в рабочем заряженном состоянии.
- Установкой систем предотвращения пожара должен заниматься профессиональный персонал с соответствующей лицензией.
Орфей.
Блок речевого оповещения БРО исп. 2 «Орфей» стоит 11700р.
Отсутствуют органы управления.
Акустические модули (оповещатели) «Орфей-МА-1» стоят 1821р — совсем дорого.
К каждому из 16 выходов рекомендуется подключать 1 оповещатель, максимум — 3.
В местах большого скопления людей, согласно требованиям пожарной безопасности, должна обязательно использоваться система речевого оповещения (СРО).
Она является неотъемлемой частью противопожарной системы и предназначена для информирования людей о начале пожара, путях и способах эвакуации, для предупреждения о других экстренных и внештатных ситуациях. Применение подобного рода оборудования гарантирует высокий уровень безопасности и защиты людей.
ПРОТИВОПОЖАРНЫЕ ПРЕГРАДЫ И ТРУБОПРОВОДЫ
Противопожарные двери, перегородки, заслоны и завесы предназначены для уменьшения площади пожарного отсека. Это позволяет локализовать пожар, снизить скорость его распространения. Как следствие облегчается тушения возгорания и эвакуация людей.
В ряде случае установка противопожарных дверей и перегородок позволяет обойтись без установки автоматического пожаротушения. Помимо снижения риска для собственника объекта может появиться и финансовая экономия.
Характеризуются эти конструкции пределом огнестойкости, который определяется временем до достижения изделием предельного состояния, а именно:
- потеря целостности,образования сквозных отверстий (щелей), разрушения полотна или коробки;
- утрата теплоизоляционных свойств.
Все это определяет ГОСТ Р 53307-2009.
Сеть трубопроводов подразделяется на:
- внутренние;
- наружные.
Первые осуществляют распределение и подачу огнетушащего вещества, наружные, главным образом, подают воду к гидрантам, расположенным вне здания.
Максимальная эффективность противопожарной защиты достигается при ее использовании в составе интегрированных систем безопасности.
* * *
2014-2023 г.г. Все права защищены.Материалы сайта имеют ознакомительный характер, могут выражать мнение автора и не подлежат использованию в качестве руководящих и нормативных документов.
Какие под-системы мы можем посоветовать?
Под-системы разработаны как чистые, быстрые и простые вейп-устройства для использования на улице и в дороге.
Что нам действительно нравится в них, так это то, что они являются идеальными устройствами не только для начинающих вейперов, но и для более опытных, превращаясь в идеальный запасной/второстепенный вейп.
Pod-моды в основном подходят для вейпинга в стиле mouth to lung (именно такой стиль вдыхания используют большинство курильщиков), поэтому они являются отличной отправной точкой.
Прежде всего, они предлагают истинную простоту.
Идеально подходит для начинающих вейперов, переходящих от курения. Если вы только начинаете курить, мы рекомендуем использовать в паре с вашим устройством солевую жидкость, которая обеспечит вам более эффективный никотиновый удар, чтобы помочь вам удержаться от сигарет.
Pod-моды являются отличным дополнением к арсеналу вейперов или, конечно, для начинающих вейперов.
Прелесть в том, что здесь есть практически все на любой вкус, бюджет и, конечно, стиль вейпинга.
Честно говоря, серьезные любители sub ohm могут посчитать, что недостаток мощности немного мешает.
Тем не менее, я очень рекомендую их для тех случаев, когда вам не надо гнать облака и вы нуждаетесь в быстром незаметном парении.
Посмотрите еще на SMOK Nord с сетчатой спиралью 0,6 Ом для большего эффекта. Их идеально оставлять в машине или на рабочем столе, а также использовать при выходе из дома.
Мне очень нравятся подсистемы Jacvapour VIM за простоту использования, а также за возможность перезаправлять картриджи
Lot Vape Orion Go DNA pod, если ваш бюджет может растянуться еще немного, — это высококачественный вейп.
Для тех, кому нравится стиль JUUL, но не нравятся вкусы, стоит обратить внимание на Apollo Brez. На самом деле, вкусы являются одними из лучших для закрытой vape-системы.
Если вы ищете действительно миниатюрное устройство, то вам стоит обратить внимание на SMOK Mico
Вы будете удивлены производительностью такого маленького устройства.
Так что в вашем арсенале определенно найдется место для одного или двух под-систем, и я надеюсь, что мы помогли вам выбрать подходящий для вас.
АВТОМАТИЧЕСКИЕ УСТАНОВКИ ПОЖАРНОЙ СИГНАЛИЗАЦИИ (АУПС)
Является основой автоматики, осуществляющей управление остальными системами. Если ею оборудуются все общественные и административные здания, то установки пожаротушения и дымоудаления требуются не всегда.
Минимально в состав сигнализации входят извещатели и приемно контрольные приборы (ПКП) (панели управления). При проектировании учитываются конструктивные особенности помещений, а также преобладающий фактор, первоначально сопутствующий возгоранию:
- задымление;
- повышение температуры;
- появление открытого пламени.
В зависимости от того каким дополнительным оборудованием предстоит управлять ПКП должен иметь соответствующие релейные (или типа «открытый коллектор») выходы. Иногда требуется установка дополнительных блоков управления.
Требования к автоматической противопожарной защите
Как правило, проектировщики, сотрудники пожарной охраны, занимающееся нормативно-технической работой, называют три основных требования к автоматической противопожарной защите:
- Максимально раннее обнаружение очага возгорания.
- Своевременное выдача и поступление управляющих сигналов для всего оборудования систем/установок АППЗ, продублированное возможностью внесения неотложных поправок дежурным персоналом предприятия, службы охраны.
- Наглядное информирование о происходящем на экране мониторов для дежурного персонала, что достигается созданием автоматизированных рабочих мест с соответствующим компьютерным программным обеспечением.
Такие сложные и дорогостоящие на этапе проектирования и монтажа оборудования системы, установки, сведенные в единый комплекс, в дальнейшем минимизируют затраты на техническое обслуживание; сводят к минимуму ложные срабатывания противопожарной автоматики, которые часто несут значительный материальный ущерб из-за испорченной отделки помещений, уничтожения, повреждения товароматериальных ценностей.
Требования нормативных документов, общих для всех систем/установок АППЗ не существует, что закономерно, ведь для каждого вида, типа элементов, входящих в ее состав, существуют свои регламенты, правила, методики испытаний.
Это интересно: Инструмент Хулиган (Halligan Tool) — история и конструкция
СИСТЕМЫ ОПОВЕЩЕНИЯ И УПРАВЛЕНИЯ ЭВАКУАЦИЕЙ
Это тоже обязательное к установке оборудование. Вопрос только в виде и характере формируемых сигналов. Всего существует пять типов СОУЭ от 1-го, требующего установки звукового оповещателя до 5-го – речевого оповещения со множеством дополнительных опций и возможностей.
Помимо сирен и громкоговорителей в состав СОУЭ могут входить световые указатели «Выход», направления движения, а при наличии в здании системы пожаротушения – соответствующие информационные табло.
Управление осуществляется АУПС. Стоит заметить, что первый и второй тип оповещения настолько привычен, что, зачастую, рассматривается как неотъемлемая часть противопожарной сигнализации.
Состав, типы, требования к выбору и монтажу СОУЭ описаны здесь.
«Все ходят рядом со смертью»
Среди героев СВО, которые прославились на всю страну в уходящем году, есть и те, кто не один год сражался за Донбасс. Настоящей легендой ДНР стала Ольга Качура с позывным Корса.
В 2014 году она создала подразделение реактивной артиллерии в составе вооружённых сил республики, которым командовала следующие восемь лет. За это время полковник воспитала сотни артиллеристов.
В конце июля Корса погибла, когда её машина попала под обстрел украинской артиллерии. Женщину пытались спасти, но она умерла по дороге в больницу в Ясиноватой.
На тот момент в подчинении у Корсы было 140 бойцов. Все они отмечали, что командир всегда проявляла требовательность, но в то же время очень заботилась о подчинённых.
«Когда меня определили в дивизион, ребята постарше говорили, что мне очень повезло. Про Корсу рассказывали, что она умная, мощный тактик — противнику не попадается», — рассказывал RT 18-летний Фрол Артамонов.
Бойцы Корсы также отмечали, что полковник никогда не бросала подчинённых. Перед тем как батарея выезжала на новые огневые позиции, Качура всегда проводила разведку и выбирала с комбатами наиболее выгодные места.
Сама Корса говорила, что на войне нет особого разделения между полковником и рядовым: все едят за одним столом и живут в одинаковых условиях — и все ходят рядом со смертью.
Полковник добавила, что за последние месяцы ненависть к врагу у неё и её подчинённых только усилилась.
«Все эти восемь лет они стреляли по нашим городам, сёлам, но это было эпизодически. А когда это происходит ежедневно, с каждым таким прилётом ненависть к противнику становится сильнее», — сказала она.
В день прощания с полковником ВСУ обстреляли центр Донецка, включая театр, где должна была состояться торжественная церемония. Тогда в результате обстрела погибли пять человек, в том числе мирные жители, ещё шесть были ранены.
Главный координатор гуманитарной помощи Народной милиции ДНР Татьяна Бутрина тогда заявила RT, что обстрела со стороны украинских войск стоило ожидать.
«Я была на прощании. Такого человека просто так не отпустили бы «укропы», даже проститься. Ни с одним погибшим командиром такого обстрела не было, как сегодня», — сказала Бутрина.
Президент России присвоил Ольге Качуре звание Героя России посмертно. В октябре эту награду он лично передал дочери полковника.
* «Азов» — организация признана террористической по решению Верховного суда РФ от 02.08.2022.
Система оповещения и управления эвакуацией людей при пожаре (СОУЭ).
Основное назначение системы оповещения — это предупреждение находящихся в здании людей о пожаре или другой чрезвычайной ситуации, а также координация их действий при осуществлении эвакуации. СОУЭ представляет собой комплекс организационных мероприятий и технических средств, предназначенных для решения этих задач.
В зависимости от способа оповещения, деления здания на зоны оповещения и других характеристик СОУЭ подразделяется на 5 типов.
Таблица 3. Характеристика различных типов СОУЭ
| Характеристика СОУЭ | Наличие указанных характеристик у различных типов СОУЭ | ||||
| 1 | 2 | 3 | 4 | 5 | |
| 1 Способы оповещения: | |||||
| звуковой (сирена, тонированный сигнал и др.); | + | + | * | * | * |
| речевой (передача специальных текстов); | — | — | + | + | + |
| световой: | |||||
| а) световые мигающие оповещатели; | * | * | * | * | * |
| б) световые оповещатели «Выход»; | * | + | + | + | + |
| в) эвакуационные знаки пожарной безопасности, указывающие направление движения; | — | * | * | + | * |
| г) световые оповещатели, указывающие направление движения людей, с изменяющимся смысловым значением | — | — | — | * | + |
| 2 Разделение здания на зоны пожарного оповещения | — | — | * | + | + |
| 3 Обратная связь зон пожарного оповещения с помещением пожарного поста-диспетчерской | — | — | * | + | + |
| 4 Возможность реализации нескольких вариантов эвакуации из каждой зоны пожарного оповещения | — | — | — | * | + |
| 5 Координированное управление из одного пожарного поста-диспетчерской всеми системами здания, связанными с обеспечением безопасности людей при пожаре | — | — | — | — | + |
Примечания:
«+» — требуется; «*» — допускается; «-» — не требуется.
Таким образом, согласно таблице №2:
1-й тип СОУЭ включает в себя обязательно сирены (тонированные сигналы), а так же допускает применение световых мигающих оповещателей и табло «ВЫХОД».
2-й тип СОУЭ включает в себя обязательно сирены (тонированные сигналы) и табло «ВЫХОД», а так же допускает применение световых мигающих оповещателей и эвакуационные знаки пожарной безопасности, указывающие направление движения.
3-й тип СОУЭ включает в себя обязательно речевые оповещатели (передача специальных текстов) и табло «ВЫХОД», эвакуационные знаки пожарной безопасности, указывающие направление движения, разделение здания на зоны пожарного оповещения, обратная связь зон пожарного оповещения с помещением пожарного поста-диспетчерской, а так же допускает применение сирены (тонированные сигналы), световых мигающих оповещателей.
4-й тип СОУЭ включает в себя обязательно речевые оповещатели (передача специальных текстов), табло «ВЫХОД», эвакуационные знаки пожарной безопасности, указывающие направление движения, разделение здания на зоны пожарного оповещения, обратная связь зон пожарного оповещения с помещением пожарного поста-диспетчерской, а так же допускает применение сирены (тонированные сигналы), световых мигающих оповещателей, световые оповещатели, указывающие направление движения людей, с изменяющимся смысловым значением, возможность реализации нескольких вариантов эвакуации из каждой зоны пожарного оповещения.
5-й тип СОУЭ включает в себя обязательно речевые оповещатели (передача специальных текстов), табло «ВЫХОД», разделение здания на зоны пожарного оповещения, обратная связь зон пожарного оповещения с помещением пожарного поста-диспетчерской, возможность реализации нескольких вариантов эвакуации из каждой зоны пожарного оповещения, координированное управление из одного пожарного поста-диспетчерской всеми системами здания, связанными с обеспечением безопасности людей при пожаре, а так же допускает применение сирены (тонированные сигналы), эвакуационные знаки пожарной безопасности, указывающие направление движения, световых мигающих оповещателей, световые оповещатели, указывающие направление движения людей, с изменяющимся смысловым значением.
а) 
б) 
в) 
г)
д)
Рисунок «Пожарные оповещатели»
а) – звуковой оповещатель; б) – табло «ВЫХОД»; в) – свето-звуковой оповещатель;
г) – речевой оповещатель; д) – эвакуационный знак пожарной безопасности, указывающий направление движения.
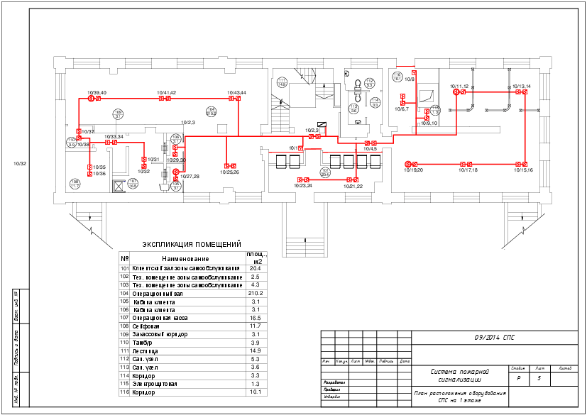
Система пожарной сигнализации
Система пожарной сигнализации, устанавливаемая на объекте, предназначена для контроля рабочих и вспомогательных помещений здания в круглосуточном режиме работы. 
Система строится на адресно-аналоговых извещателях «ДИП-34А-01-02» подключаемых через контроллеры двухпроводной линии связи «С2000-КДЛ» №8,9,10,11, которые осуществляют непрерывный контроль состояния шлейфов пожарной сигнализации и передают информацию по последовательному интерфейсу RS-485 на ПКУ «С2000М» и персональный компьютер с АРМ «Орион» (учтены в проекте 09/2014 СОТС). ![]()
Для подачи сигнала тревоги при визуальном обнаружении возгораний устанавливается извещатель пожарный ручной адресный электроконтактный «ИПР-513-3АМ».
Извещатель устанавливается на стену на высоте 1,5м от уровня пола.
Датчики установить по месту согласно проекту.
Допускается изменение расположения пожарных извещателей в помещениях, при условии соблюдения требований п. 13.3 СП 5.13130.2009. ![]()
Для отображения состояния контролируемых разделов применяется блок индикации «С2000-БИ» №12.
Передача извещений на ПЦН производится по телефонным линиям с выхода ППК «Приток-А-16» №1 (учтен в проекте 09/2014 СОТС). Для передачи извещений на ПЦН используется релейный блок «С2000-СП1» №16.
Монтаж пожарных извещателей выполнить после установки светильников, в соответствии с проектом, требованиями СП 5.13130.2009, РД 78.145-93, технологическими картами и инструкциями.
![]()
Шлейфы пожарной сигнализации работают круглосуточно без права отключения. Режим пожарной защиты постоянно включен и будет подавать сигнал тревоги в случае возникновения опасной ситуации (возгорания и появления дыма).
В случае возникновения внештатной ситуации (возгорание, дым…) предусмотрена разблокировка дверей. Команда в систему СКД поступает от контактов релейного блока «С2000-СП1» №16.
Для автоматического отключения при пожаре систем вентиляции и энергопотребителей используется устройство коммутационное «УК-ВК».
Сфера применения
Где можно использовать системы оповещения и управления эвакуацией?
Согласно вышеприведенным нормам, звуковое оповещение может применяться для следующих сооружений.
- Предприятия торговли.
- Большие автостоянки.
- Складские объекты.
- Гостиницы, общежития, отели, хостелы.
- Общеобразовательные учреждения.
- Помещения производства.
- Выставочные комплексы, танцплощадки, музеи, галереи.
- Театры, библиотеки, киноконцертные залы.
- Детские учреждения.
Кроме этого, все подобные объекты с большей площадью, вместимостью, количеством рабочего персонала необходимо также оборудовать системой речевого оповещения.
Стоимость проекта автоматической охранно-пожарной сигнализации
При расчете необходимо руководствоваться следующими указаниями:
- Под объектом понимается общая площадь комплекса зданий и сооружений, которые подлежат оборудованию установками пожаротушения. Если в защищаемых помещениях расположены технологические площадки, фальшпотолки и фальшполы, то их площадь прибавляется к основной площади помещений.
- Цена работ определяется по приведенным ниже таблицам и может дополнительно корректироваться по согласованию с заказчиком. При заказе монтажа систем клиенту возвращается от 10% стоимости услуг проектирования.
- Для получения дополнительной информации обращайтесь к специалистам нашей компании по телефону 8 (495) 637-91-88.
Ария.
Предлагается на выбор целых три варианта систем оповещения, которые анонсированы следующим образом:
Собственно эта классификация можно сказать что универсальная для различных систем и других производителей.
Нас интересуют небольшие системы оповещения, поэтому трансформаторную систему тут рассматривать не будем.
Различие линий оповещения для активных и пассивных АС рассматривались выше — все тоже касается и этой системы.
Пассивная система речевого оповещения Ария.
Характеристики: ГО и ЧС, музыка, 2 реч. сообщения, 100 сек., 40 Вт, 5-25000 Гц, кол-во оповещателей — 48шт.
| Прибор | Особенности | Цена, р |
|---|---|---|
| АРИЯ-ПС-БРО-Р | С резервным источником питания | 2726 |
| АРИЯ-ПС-БРО-М | С трансляцией фоновой музыки | 2662 |
| АРИЯ-ПС-БРО-РМ | С трансляцией фоновой музыки и резервным источником питания | 3770 |
Встроенного микрофона нет и для обеспечения трансляции с микрофона требуется подключение внешнего микрофона «МК-12» за 1400р.
Ассортимент модификаций АС «АРИЯ-ПС» довольно таки большой: 3Вт, 5Вт, 10Вт, настенный, потолочный, подвесной.
Например, «АРИЯ-ПС-3П» 3Вт, 90дБ, 120-16000Гц, 8 Ом, потолочное исполнение стоит 540р.
Поскольку АС не активные, для подключения нескольких АС требуется сложная схема. Линейнно можно подключить не более 4-х АС. Если АС больше — требуется перекрестные соединения групп из 4-х АС.
Особенности.
Это самая дешевая система речевого оповещения, соответствующая ГОСТ Р 53325-2012.
Необходим дополнительный микрофон, то-есть цена комплекта будет 2726+1400=4126р.
Всего одна зона оповещения и будет сложно обеспечить линию оповещения надлежащей топологии уже даже для 10 АС.
Активная система речевого оповещения Ария.
Характеристики: 22-22000 Гц, 4 зоны оповещения, музыка, ГО и ЧС, 9 реч. сообщений, 100 сек., кол-во оповещателей — 4х50 шт., 4 линии управления, контроль линий.
| Прибор | Особенности | Цена, р |
|---|---|---|
| АРИЯ-АС-БРО-М4 | Питание от внешнего источника 12В | 4327 |
| АРИЯ-АС-БРО-РМ4 | С резервным источником питания | 7435 |
Требуется контролируемая линия питания 12В. Как контролировать целостность линии питания остается за кадром схемы соединения.
Дочитал в руководстве пользователя, что прибор обеспечивает автоматический контроль наличия напряжение питания на активных речевых оповещателях.
Встроенного микрофона нет — требуется все тот же микрофон «МК-12».
Применение активных речевых оповещателей позволяет делать линию оповещения шлейфом без перекрестных соединений.
Возможно ветвление одной линии оповещения на несколько направлений — лишь бы итоговое сопротивление оконечных резисторов ветвей, соединенных параллельно, было 4.7кОм.
Цена самой дешевой активной АС «АРИЯ-АС-3П» потолочного исполнения 736р.


















![В россии разрабатывают ракету "рокот-2" с новой системой управления [фото] / news2.ru](http://ihomesystems.ru/wp-content/uploads/2/0/f/20f1a030a7357e502648e7d730653b21.jpeg)










